Скиния
Ски́ния (др.-греч. σκηνή, скэнэ́, «шатёр; палатка», др.-евр. מִשְׁכָּן, мишкан, «обиталище; местопребывание», др.-евр. אהל מועד, охел моэд, «шатёр свидетельства») — в основном употребляется в значении походного храма евреев, скинии собрания, использовавшегося, согласно Библии, как место принесения жертвоприношений и хранения ковчега завета до постройки иерусалимского храма, созданного строго по образу скинии.
В русской традиции также употребляется синоним слова скиния — куща[1] (см. Суккот).
Названия
Для обозначения скинии Библия пользуется двумя системами названий:
- одна основывается на названии ха-мишкан (המשכן — «обиталище; местопребывание [Бога]») и включает мишкан ха-эдут (משכן העדות — «местопребывание свидетельства», то есть скрижалей завета, находившихся в ковчеге завета) и мишкан ха-шем (משכן השם — «местопребывание имени [Бога]»), то есть место, где шхина Творца пребывает на земле, среди народа Израиля;
- другая основывается на названии охел (אוהל — «шатёр; скиния») и включает охел моэд (אוהל מועד — «скиния свидетельства») и охел ха-эдут (אוהל העדות — «шатёр свидетельства»).
В нескольких местах Библии объединены оба названия в одно мишкан охел моэд («местопребывание скинии свидетельства») (Исх. 39:32).
Объясняется это тем, что оба этих слова мишкан и охел являются в древнееврейском синонимами. Так, оба этих слова употреблены в одной фразе: «Как прекрасны шатры твои (охалеха), Иаков, обиталища твои (мишкенотеха), Израиль» (Чис. 24:5).
Гораздо реже в Библии можно встретить и другие названия скинии: микдаш («святилище») и ха-кодеш («святое [место]»).
Предназначение скинии и храма в иудаизме
В еврейской Галахе заповедь строительства храма является повелением из поколения в поколение строить здание, которое станет центром священнослужения еврейского народа и в котором будут приноситься жертвоприношения единому Богу.
В иудаизме существует два основных мнения по вопросу о назначении храма. С одной стороны, строительство скинии, а позже и храма, рассматривается как некое снисхождение к человеческой природе, в лучшем случае некое средство; с другой, напротив, храм представляет собой вершину всех мыслимых совершенств. Оба эти подхода напрямую связаны с разногласием относительно датировки получения заповеди о постройке скинии[3].
- Согласно первой версии (Мидраш Танхума), заповедь о строительстве скинии была дана в Йом-Киппур, то есть в тот день, когда Всевышний простил евреям грех золотого тельца. До этого греха не было необходимости в храме, так как шхина (Слава Божия), обитала среди народа.
- В то же время, в другом авторитетном источнике (Мидраш Шир ха-ширим Раба) утверждается, что законы о постройке скинии были даны на горе Синай, то есть в данном случае Писание придерживается хронологического порядка изложения. Согласно этому мнению, храм является точкой соприкосновения земли с небом и изначально необходимым компонентом мироздания.
Таким образом, в иудаизме существует два образа понимания предназначения и смысла храма: один расценивает его как ценность прикладную, второй — как безусловную.
Так или иначе, Творец, без всякого сомнения, выше любого здания — Он не нуждается в «жилой площади», не нуждается в жертвоприношениях, воскурениях, возлияниях и т. п. Всюду в тексте Писания, где сказано: «Моя жертва», «Мой хлеб», имеется в виду: «жертва, посвящённая Мне», «хлеб, посвящённый Мне».[4]
«Следует отметить, что в Торе сказано не „Я буду обитать В нём“, но „Я буду обитать посреди их“, то есть среди людей. Это означает, что Слава Божия проявляется не столько через сам храм, сколько через народ, построивший его. Не храм является причиной раскрытия Славы Божией, а самоотверженное желание людей ощутить руку Всевышнего, управляющего миром везде и повсюду».
— Сончино
.
«Сказано: «Пусть сделают они Мне святилище, и буду обитать среди [или: внутри] них» (Исх. 25:8) — в них, людях, а не в нём, в святилище. Все мы должны воздвигнуть скинию в наших сердцах, дабы Бог обитал там».
— Мальбим
Тем самым еврейские пророки[5] и законоучители неоднократно подчёркивали тот факт, что храм нужен не Богу, а самим людям.
В христианстве скиния расценивается исключительно как прикладная ценность, считается одним из ветхозаветных прообразов церкви[6]. Возможно, христианское понимание смысла и назначения скинии в чём-то созвучно Мидрашу Танхума, что скиния всего лишь некое снисхождение к человеческой природе, в лучшем случае некое средство. Христианство согласно с мнением пророков[5], что скиния нужна людям, а не Богу.
«Двенадцать находившихся там хлебов соответствуют двенадцати месяцам; семь лампад [светильников] — Солнцу, Луне и пяти [известным тогда] планетам [Меркурий, Венера, Марс, Юпитер и Сатурн]; а четыре рода материалов, из которых была соткана завеса, — четырём стихиям [земля, море, воздух и огонь]».
— Иосиф Флавий, «Иудейские древности» III, 7:7
«Храм, прообраз мироздания, назван „вратами небес“, ибо Божественный свет исходит из высшего мира в нижний и наполняет Храм, а из Храма распространяется по всей земле, и каждый элемент мира получает предназначенный ему свет из соответствующей детали Храма».
— раввин Иешаяху Горовиц (XVI в.), «Шней лухот а-брит»[7]
«На западе стоял Ковчег Закона с его украшенной херувимами крышкой; на севере — Стол с хлебами предложения; на юге — Менора с лампадами; восточная сторона была обращена к народу, с той стороны был вход, и там, один за другим, стояли жертвенники, которые как бы побуждали людей к радостной самозабвенной отдаче себя Божественной Торе, ожидающей их на западе. Мы верим, что не ошибёмся, предположив, что западная сторона призвана была олицетворять Тору и Присутствие Бога, которое она, и только она, воплощает; северная сторона — материальную жизнь; южная — духовную жизнь; восточная же — конкретный народ, народ Израиля, призванный к самоотверженному служению Богу и Его Торе».
— раввин Шимшон Рафаэль Гирш
«Скиния прообразовала собою Церковь Христову».
Согласно тексту Писания, функции Скинии можно разделить на несколько основных категорий, которые, прежде всего, базируются на том, что главное и важнейшее предназначение Скинии основывается на названии «мишкан», то есть Скиния является местом, где Шехина Творца (Слава Божия) пребывает на земле, среди народа Израиля.
Исходя из слов Пятикнижия: «И построят Мне святилище, и Я буду пребывать среди них» (Исх. 25:8), — Скиния является:
- местом, где Бог обнаруживает Своё присутствие[8] и откуда (точнее, между крыльями херувимов на крышке Ковчега Завета, находящегося в Святая святых) Он говорит с Моисеем[9] после его пребывания на горе Синай;
- местом служения Богу, где осуществляются регулярные церемонии и жертвоприношения. Это также место, где каждый может приблизиться к Богу и принести искупительную или благодарственную жертву;
- местом проявления Славы Божией (Шехины). Для всех живших в те времена, когда существовали Скиния и Храм, пребывание Славы Божией в Храме не было вопросом веры; это было простое знание, факт, столь же очевидный, как пребывание в небесах Солнца и Луны[10].
Согласно Писанию[11], в пустыне облако Славы Всевышнего всегда покрывало Скинию, когда же оно поднималось, это являлось знаком для отправления в путь. Кроме этого, Скиния служила также:
- местом публичного собрания всего народа;
- хранилищем высшей национальной святыни, Ковчега Завета, и свитков Торы, которые служили эталоном для всех прочих свитков.
Строительство Скинии
Согласно книге Исход, повеление о строительстве Скинии Моисей получил на горе Синай, ещё до получения Скрижалей Завета. Это повеление приводится в Библии целиком, с большим количеством деталей, и занимает около 7 глав (Исх. 25 — 31).
- Повеление начинается с описания пожертвований (Исх. 25:3-7), которые следует собрать с сынов Израиля на строительство Скинии. Для строительства Скинии и её составляющих были необходимы пятнадцать различных материалов:
И вот приношение, которое вам принимать от них: золото, серебро и медь; и синету[12], и багряницу[13], и червленицу[14], и виссон[15], и козью шерсть, и кожи бараньи красные, и кожи тахашевые[16], и дерева шиттим[17], елей[18] для светильника, пряности для елея помазания и для благовонного воскурения, камни ониксовые и камни вставные для эйфода и для наперсника.[19]
- Затем перечисляются законы, связанные с тремя предметами, которые должны быть помещены внутри Скинии: Ковчег Завета (для хранения Скрижалей) (Исх. 25:10-22), Стол хлебов предложения (для хлебных приношений) (Исх. 25:23-30) и Менора (светильник) (Исх. 25:31-40).
- После этого описывается строение самой Скинии (Исх. 26), к которой относятся также законы «парохет» (завесы, отделявшей Святая святых) и «масах» (завесы, закрывавшей вход в Скинию).
- После всего этого заповедует Бог Моисею строительство жертвенника всесожжения, который должен был находиться во дворе Скинии (хацер). И о законах, связанных с самим двором Скинии (Исх. 27).
На этом заканчивается первая часть повеления о строительстве Скинии.
- Вторая часть начинается с законов, связанных с елеем для светильника (Меноры) (Исх. 27:20, 21), затем приводятся законы священников — коэнов: предписания о священнической одежде (Исх. 28), церемонии помазания священников и освящения жертвенника (Исх. 29:1-37). И, в заключение, приводятся законы ежедневной жертвы всесожжения (Исх. 29:38-42).
- В следующей главе Библия добавляет к основному повелению детальное описание золотого жертвенника для воскурений (Исх. 30:1-10), законы о половине шекеля (Исх. 30:11-16) и описание медного умывальника (Исх. 30:17-21).
- После завершения описания законов о храмовой утвари идёт повеление о приготовлении елея помазания и о необходимости помазания им всей утвари перед началом её употребления (Исх. 30:22-33), а также о приготовлении смеси для воскурений и законов её воскурения (Исх. 30:34-38).
- В заключение Всевышний подводит итог:
И сказал Господь Моше, говоря: смотри, Я призвал именно Бецалеля, сына Ури, сына Хура, из колена Йеудина. И я Исполнил его Духом Божиим, мудростью, разумением, ведением и всяким искусством, чтобы творить замыслы, чтобы работать по золоту и по серебру, и по меди, и по резьбе камней для вставления, и по резьбе дерева, дабы исполнять всякую работу. И вот, Я назначил к нему Аолиава, сына Ахисамаха, из колена Данова, и в сердце всякого мудрого сердцем вложил Я мудрость, и они сделают всё, что Я повелел тебе. Шатёр соборный и ковчег для откровения, и крышку на него, и все принадлежности шатра; и стол, и все принадлежности его, и светильник чистый со всем прибором к нему, и жертвенник воскурения; и жертвенник всесожжения со всем его прибором, и умывальник, и подножие его; и одежды служебные, и одежды священные Аарону, священнику, и одежды сынам его для священнослужения; и елей помазания, и курение из пряностей для святилища: всё так, как Я повелел тебе, пусть сделают они.
- Описание законов Скинии завершает повеление о Шаббате, из которого комментаторы делают вывод о том, что законы Шаббата нельзя нарушать даже для строительства Скинии, а работы по её строительству, в свою очередь, представляют собой прообразы запретов Шаббата.
- Далее приведена речь Моисея, в которой он передаёт указания Бога народу Израиля, после чего с большими подробностями приводится описание работ по строительству Скинии и её утвари.
Трудились над сооружением Скинии около полугода (от 11 тишри до 1 нисана)[20]. Когда работы были окончены и все принадлежности Скинии были готовы, последовало указание Бога о возведении Скинии, освящении её утвари и помазании в священнический сан Аарона и его сыновей первого числа месяца нисан (в котором и произошёл Исход евреев из Египта), на второй год после Исхода[21]. Освящение заключалось в помазании священным составом из смирны самоточной, корицы, трости благовонной, кассии и елея.
Возведение Скинии описано в последних стихах книги Исход и заканчивается описанием спуска Славы Господа (Шехины) на Скинию:
Покрыло облако Скинию собрания и слава Господня наполнила скинию… Облако Господне стояло над Скинией днём, и огонь был ночью в ней пред глазами всего дома Израилева, во всё путешествие их.
С этих пор облако покрывало Скинию в продолжение всего странствования израильтян по пустыне. Каждый раз, когда облако отделялось от Скинии, израильтяне снимали свои шатры и отправлялись в путь, и где оно останавливалось, там они располагали свой стан.
- В первых главах книги Чисел детально описываются обязанности левитов и правила разборки и погрузки Скинии и её утвари во время переходов. Левиты должны были также устанавливать Скинию во время остановок и охранять её со всех сторон.
Как только Скиния была сооружена, она заняла центральное место среди народа Израиля — в прямом и переносном смысле — как при переходе через пустыню, так и во время стоянок. Расстояние в пустыне между народом и Скинией никогда не было больше 2000 локтей, с тем, чтобы в Субботу каждый имел возможность прийти к ней для молитвы[22].
Устройство Скинии согласно Пятикнижию Моисея (Книга Исход)
Детальное описание устройства Скинии содержится в Исх. 25 — 31 и Исх. 35 — 40.
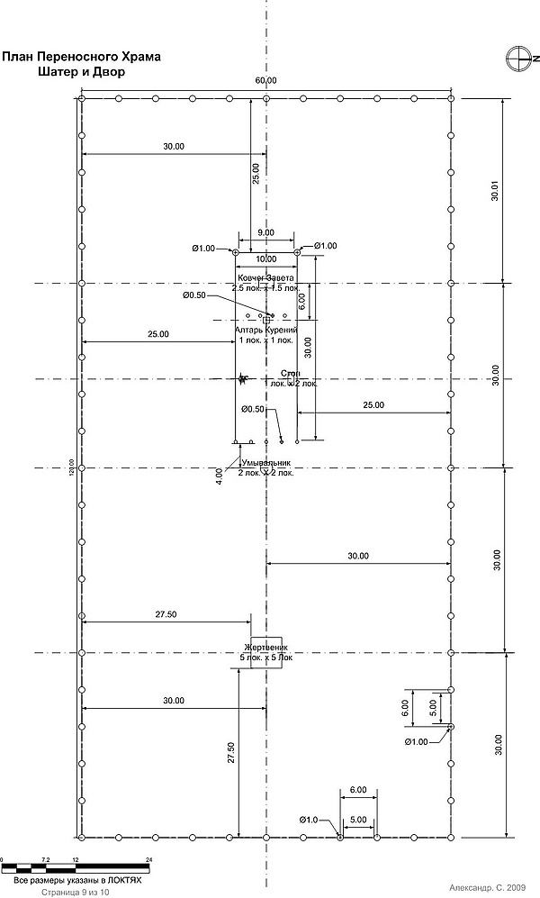
Скиния располагалась в соответствии со сторонами света. Шатёр 31×10 локтей находился в западной части большого двора (хацер), длиной в 120 локтей и шириной в 60 локтей.
Расстояние от завес двора до стен шатра составляло 25 локтей с севера, юга и запада. Вход в Скинию располагался с восточной стороны и был закрыт особым пологом, который назывался масах, общей длиной в 20 локтей. Полог был связан из голубой, пурпуровой и червленой шерсти, а также из крученого виссона. Полог был узорчатой работы.
Двор Скинии (Хацер) был длинной в 100 локтей (50 метров) по южной и северной стороне (Исх. 27:11), причем сторона состояла из 20 столбов. Западная и восточная сторона имела длину в 50 локтей (25 метров) и содержала 10 столбов (Исх. 27:12). Таким образом двор представлял собой прямоугольник. Высота ограды составляла 5 локтей (2.5 метра: Исх. 27:18) Между столбами были натянуты расшитые занавеси (клайим), искусно сплетённые из кручёного виссона. Каждая такая занавесь была 5х5 локтей, и всего их было 56.
Напротив входа в шатёр пять центральных столбов восточной стороны двора образовывали ворота Скинии. Эти столбы были покрыты особыми пологами из голубой, пурпуровой и червленой шерсти, а также из крученого виссона, который назывался масах. Пологи ворот состояли из четырёх частей, 5×5 локтей каждая, общей длиной в 20 локтей.
С севера и юга двора было по 20 столбов, на западе — десять, на востоке по три с каждой стороны от входа и ещё четыре поддерживали полог (масах).
Во дворе, напротив входа, размещался большой жертвенник всесожжения, из окованного медью дерева (поэтому он назывался также «медный жертвенник»). На нём приносились жертвы, и на нём постоянно должен был гореть огонь.
В самом центре двора стоял медный умывальник (киор) для священников[23]. Все принадлежности двора были выполнены из меди.
Шатёр представлял собой каркас из деревянных досок, обложенных золотом, покрытый десятью покрывалами (Исх. 26:1). Его устройство позволяло разбирать всю конструкцию на части, пригодные для ношения. Размеры шатра составляли 31 локоть в длину, 10 локтей в ширину и 10 локтей в высоту. Шатёр был разделён на две части занавесом (парохет). Задняя его часть (западная часть, размером 10х10х10 локтей) называлась Святая святых (Кодеш кодашим). Перед Святая святых находилось священное пространство, Святилище (Кодеш), отделённое завесой (масах) от передней части ограждённого двора (Хацер). Таким образом, шатёр состоял из трёх деревянных стен: двух боковых, на север и юг, и задней, на запад и был закрыт завесой с восточной стороны. Обе разделяющие завесы имели размер 10×10 локтей.
На стены и верх скинии набрасывались покровы, представляющие важнейшую её часть и придававшие ей вид шатра. Их было четыре.
- Первый, нижний слой, служивший потолком шатра, составляли десять отдельных полос (йериот) из кручёного виссона, голубой, пурпуровой и червлёной шерсти. На полосах, каждая из которых была длиной в 28 локтей и шириной в 4 локтя, были искусно вытканы херувимы. Полосы были сшиты по пять вместе. Образовавшиеся таким образом две половины покрова соединялись вместе посредством 50 золотых крючков. Длина всего покрова была 40 локтей и шириной в 28 локтей. Покров этот, закрывавший верх шатра, покрывал также и стены шатра: на 9 локтей от верха шатра с северной и южной стороны и на 8 локтей со стороны западной (Исх. 26:12-13 6).
- Второй покров, который клали поверх первого, был сделан из козьей шерсти, обычного материала для шатров. Он состоял из 11 полотнищ, каждое из которых также было шириной 4 локтя, однако длина каждого составляла уже 30 локтей. Эти полотнища сшивались по пять и шесть вместе, и получившиеся два куска скреплялись вместе с помощью медных крючков. В результате, размеры этого покрывала получались 44 локтя в длину и 30 локтей в ширину.
- Третий покров был сделан из красных бараньих шкур и имел размер 42 локтя в длину и 30 локтей в ширину.
- Четвёртый покров составляли кожи животного, именуемого в тексте «тахаш», вероятнее всего, покрывавшие лишь верх шатра.
Две особые угловые доски состояли из двух досок такой же длины, высоты, толщины и дизайна, как и все остальные доски шатра. Эти две доски были изогнуты в виде двух одинаковых полых полуцилиндров, и, когда их соединяли вместе, они образовывали единый полый цилиндр, который и становился угловой доской. Каждая из этих досок была 10 локтей в высоту, с внешним диаметром в 1 локоть, с внутренним диаметром 3/π=0,9549 локтя и толщиной в 0.5-(1,5/π)=0,0225 локтя.
Стены состояли из перпендикулярно поставленных досок, высотой в 10 локтей и шириной в 1,5 локтя, причём боковые (южная и северная) стены имели по 20 досок, а задняя (западная) — шесть, кроме двух особых досок для углов, соединявших её с боковыми стенами. Толщина брусьев досок легко рассчитывается: она составляла 0,5-(1,5/π) = 0,0225 локтя.
Все доски были обложены золотом. Всего досок было 48, 46 прямых и четыре изогнутых, составляющих две угловые доски.
Снизу каждая доска вставлялась в два серебряных подножья (аданим), которые служили для удержания досок на месте. Каждое подножье было 3⁄4 локтя в длину, за исключением четырёх изогнутых подножий, 1,5 локтя каждое, под две угловые доски для западной стены.
Доски были скреплены также пятью горизонтальными поперечными засовами снизу, сверху и посередине с каждой стороны.
С северной и южной стороны, на высоте 1 и 9 локтей от верха стен, в два ряда проходили четыре засова: два засова по 10 локтей с западной части стен и два засова по 19 локтей с восточной части стен, с промежутком в 1 локоть ровно посередине каждой стены. С западной стороны, на высоте 2 и 8 локтей от верха стены, в два ряда проходили четыре засова, по 4 локтя каждый, с промежутком в 1 локоть ровно посередине стены. Пятый, серединный засов, проходил по всей длине каждой стены, на высоте 5 локтей от верха стен. Все засовы вставлялись в золотые кольца на досках с внешней стороны скинии. На каждой доске было по два кольца для каждого засова. Толщина засовов и колец не ясна.
Все засовы были обложены золотом. Кольца засовов были сделаны из золота.
У входа в шатёр были установлены пять столбов из акации, покрытых листовым золотом и установленных на медные подножья, на которых крепилась завеса (масах), закрывавшая вход. Эта завеса была похожа на ту, которая закрывала ворота двора Скинии.
Внутри шатёр делился на две неравные части другой завесой (парохет), которая состояла из той же двухслойной тканой материи (пряжи и виссона синего, пурпурного и алого цветов), что и нижний покров, и была размером 10×10 локтей. Парохет крепилась золотыми крючками на четырёх столбах из акации, покрытых листовым золотом и установленных на серебряные подножья.
- Меньшее помещение в глубине было размером 10×10×10 локтей и называлось «Святая Святых» (Кодеш ха-кодашим), в нём находился только Ковчег Завета (Арон ха-брит), самый святой предмет Скинии, а в нём — Скрижали Завета (Лухот ха-брит).
- Рядом с Ковчегом хранился свиток Торы, написанный самим Моисеем[24]. В Святая святых хранились также сосуд с манной и жезл Аарона[25].
- В Святая святых разрешалось входить одному Первосвященнику и только раз в году, на Йом Киппур[26].
- Вторая часть, размером 21×10×10 локтей, называлась Святилище (ha-Кодеш) или «Шатёр свидания» (Оhель моэд) и была основным местом священнослужения. В Святилище располагались:
- налево от входа, на расстоянии 10,5 локтей от масах — семиствольный золотой светильник — Менора;
- направо от входа, на расстоянии 10,5 локтей от масах — Стол хлебов предложения, сделанный из акации и обложенный золотом, с 12 хлебами предложения;
- посередине Святилища, на расстоянии 20 локтей от входа (масах) и 5 локтей от северной и восточной стены — Жертвенник воскурения, также сделанный из акации и обложенный золотом, для курения благовонных курений (назывался также «золотой жертвенник»).
Устройство Скинии согласно еврейской традиции (Талмуд, Мишна и т. д.)
Детальное описание устройства Скинии содержится в Исх. 25 — 31 и Исх. 35 — 40. Тем не менее, множество отдельных деталей, связанных с ней (некоторые материалы, размеры некоторых элементов, способы сборки и крепления), остаются неясными.
Скиния располагалась в соответствии со сторонами света. Шатёр 30×10 локтей находился в западной части большого двора (хацер), длиной в 100 локтей и шириной в 50 локтей. Расстояние от ограды двора до шатра составляло 20 локтей с севера, юга и запада и 50 с востока[27]. Вход в Скинию располагался с восточной стороны и был закрыт особым пологом, который назывался масах, длиной в 20 локтей. Полог был связан из кручёной из двадцати четырёх частей нити, на обеих его сторонах были вышиты керувим (херувимы).
Вокруг Скинии сооружался прямоугольный двор (Хацер) довольно больших размеров 100×50 локтей (около 1370 м²), ограждённый столбами[28] на медных основаниях. Между столбами были натянуты расшитые занавеси (клайим), искусно сплетённые из полотна наподобие сети, образуя стены высотой около 2,6 м.
Ворота двора Скинии располагались с восточной стороны, напротив входа в шатёр. Они были покрыты особым пологом из шерсти, окрашенным в синий, пурпурный, алый и белый цвета, который назывался масах и был длиной в 20 локтей.
С севера и юга двора было по 20 столбов, на западе — 10, на востоке — по 3 с каждой стороны от входа, и ещё 4 поддерживали полог (масах)[29].
Во дворе, напротив входа, размещался большой Жертвенник всесожжения, устроенный из акации и окованный медью (поэтому он назывался также «медный жертвенник»). На нём горел неугасимый огонь и приносились жертвы. Позади жертвенника стоял медный умывальник (киор) для священников[23]. Все принадлежности двора были выполнены из меди.
Вход в шатёр был разрешён лишь священнослужителям (левитам и коэнам), остальные же евреи могли заходить лишь во двор.
Двор в Иерусалимском Храме назывался Азара.
Шатёр представлял собой строение, сочетавшее как форму шатра, так и форму прямоугольного шалаша с каркасом из деревянных досок и плоской крышей (сукка) без окон. Его устройство позволяло разбирать всю конструкцию на части, пригодные для ношения. Размеры шатра составляли 30 локтей в длину, 10 локтей в ширину[30] и 10 локтей в высоту (около 16×5,4×5,4 м), и в задней его части находилась ещё одна, внутренняя, скиния, размером 5×5×5 м, отделённая от остальной части строения занавесом (парохет) и называемая Святая святых (Кодеш кодашим). Перед Святая святых находилось священное пространство, Святилище (Кодеш), отделённое завесой (масах) от передней части ограждённого двора (Хацер). Таким образом, шатёр состоял из трёх деревянных стен: двух боковых, на север и юг, и задней, на запад и был закрыт завесой с восточной стороны.
На стены и верх скинии набрасывались покровы, представлявшие важнейшую её часть и придававшие ей вид шатра. Их было четыре.
- Первый, нижний слой, служивший потолком шатра, составляли 10 отдельных полос (йериот) из двухслойной тканой материи (пряжи и виссона) небесно-голубого цвета[31], каждая из которых была длиной в 28 локтей и шириной в 4 локтя, и сшитых по пять полос вместе. Образовавшиеся таким образом две половины покрова соединялись вместе посредством 50 золотых крючков. Длина всего покрова была 28 локтей, ширина 20 локтей. Покров этот, закрывавший верх шатра, покрывал также и стены до серебряных подножий, которые оставались внизу непокрытыми (за исключением западной стены, где они были покрыты до самой земли). Он носит в Библии название Мишкан[32], что означает парадный шатёр, покрытый дорогими тканями, тогда как обыкновенный, простой шатёр называется Охель.
- Второй покров, который клали поверх первого, был из не пропускающей сырости козьей шерсти, обычного материала для шатров, и назывался «шатёр (Оhель) над Мишканом»[33]. Он состоял из 11 полотнищ, каждое из которых также было шириной 4 локтя, однако длина его составляла 30 локтей. Эти полотнища скреплялись по 5 и 6 вместе с помощью медных крючков.
- Третий покров — из бараньих шкур, окрашенных в красный цвет.
- Самый верхний слой составляли кожи животного, именуемого в тексте «тахаш»[16].
Третий и четвёртый покровы покрывали, по-видимому, только верх шатра. Размеры этих полотнищ Библия не указывает. По некоторым мнениям, тахашевые кожи образовывали крышу над шатром, а бараньи шкуры, прикреплённые к ним, свисали с обеих сторон, закрывая брусья.
Все эти материалы считались очень дорогими, что подтверждает и библейский текст — Иез. 16:10.
Материалом для Скинии послужило, вероятно, дерево акации (шита, мн. ч. шиттим), наиболее распространённое в пустынной местности вокруг Красного моря. Сделать все части Скинии из деревьев этого типа довольно нелегко, поскольку трудно найти нужное количество прямых стволов, которые обычно имеют небольшую длину и сильно изогнуты.
Стены состояли из перпендикулярно поставленных брусьев, высотой в 10 локтей и шириной в 1,5 локтя, причём боковые стены имели по 20 брусьев, а задняя — 6, кроме 2 брусьев для углов, соединявших её с боковыми стенами. Толщина брусьев не указана, но, согласно Талмуду[34], она равнялась 1 локтю. Все брусья были покрыты листовым золотом.
Снизу брусья были вырезаны таким образом, чтобы их можно было вставить в два серебряных подножья (аданим), которые служили для удержания всего сооружения на месте даже на неровной поверхности. Подножья были 3/4 локтя шириной, 1 локоть в длину и высоту.
Брусья, вероятно, были вырезаны также и сверху, с тем, чтобы дополнительные аданим скрепляли их между собой. Кроме того, каждый брус был прикреплён к соседнему с помощью верхнего и нижнего деревянных шипов, которые выступали из каждой доски и вставлялись в отверстие, сделанное в соседней доске. Также брусья были скреплены пятью горизонтальными поперечными засовами с каждой стороны. Снизу и сверху (на расстоянии 2,5 локтя) в два ряда проходили четыре засова длиной в половину стены каждый. Эти засовы вставлялись в золотые кольца с внешней стороны скинии. Дополнительный, серединный засов, проходил через отверстия, проделанные в середине досок. По одному из мнений[35], этот засов шёл горизонтально от конца до конца Скинии (70 локтей) и чудом поддерживал всю его конструкцию. Засовы также были покрыты листовым золотом.
| Север | ||
| Запад |
|
Восток |
| Святая святых Святилище | ||
| Юг |
У входа в шатёр были установлены пять столбов из акации, покрытых листовым золотом и установленных на медные подножья, на которых крепилась завеса (масах), закрывавшая вход. Эта завеса была похожа на ту, которая закрывала ворота двора Скинии.
Внутри шатёр делился на две неравные части другой завесой (парохет), которая состояла из той же двухслойной тканой материи (пряжи и виссона синего, пурпурного и алого цветов), что и нижний покров, и была размером 14×12 м. Парохет крепилась золотыми крючками на четырёх столбах из акации, покрытых листовым золотом и установленных на серебряные подножья.
- Меньшее помещение в глубине было размером 10×10×10 локтей и называлось «Святая Святых» (Кодеш ха-кодашим), в нём находился только Ковчег Завета (Арон ха-брит) — самый святой предмет Скинии, а в нём Скрижали Завета (Лухот ха-брит)[36] — первые разбитые, и вторые — целые[37].
- Рядом с Ковчегом хранился свиток Торы, написанный самим Моисеем[24]. Также в Святая святых хранились сосуд с манной, расцветший жезл Аарона, елей помазания[38], а впоследствии также и золотые дары филистимлян[39].
- В Святая святых разрешалось входить одному Первосвященнику и только раз в году, на Йом Киппур.
- Вторая часть, размером 20×10×10 локтей, называлась Святилище (ha-Кодеш) или «Шатёр свидания» (Оhель моэд) и была основным местом священнослужения. В Святилище располагались:
- налево от входа, на расстоянии 5 локтей от парохет и 2,5 локтя от южной стены — семиствольный золотой светильник с негасимым пламенем — Менора;
- направо от входа, на расстоянии 5 локтей от парохет и 2,5 локтя от северной стены — Стол хлебов предложения, сделанный из акации и покрытый листовым золотом, с 12 хлебами предложения,;
- посередине Святилища, на расстоянии 10 локтей от масах и парохет и 5 локтей от каждой из стен — жертвенник воскурения, также сделанный из акации и покрытый листовым золотом, для курения фимиама (назывался также «золотой жертвенник»).
Внутренняя планировка Соломонова Храма создавалась подобной планировке Скинии, храмовая утварь сходна с утварью Скинии, в обоих святилищах одинаковые по форме жертвенники, меноры и т. д.
Впоследствии, аналогичные элементы перешли в планировку еврейских синагог и христианских храмов.[40]
Скиния после завоевания Ханаана
В Земле Израиля Скинию неоднократно перевозили с места на место[41].
С началом завоевания Ханаана Скиния, вероятно, находилась в стане израильтян в Гилгале, напротив Иерихона[42] в течение 14 лет. Оттуда Скиния переместилась в Силом (Шило)[43], где она оставалась в период Судей[44] до смерти первосвященника Илия (Эли)[45]. Судя по всему[46], со временем стены святилища в Силоме были выстроены из камней, покрытых завесами[47]. После разрушения Скинии в Силоме[48] была построена Скиния в Нове[49], городе священников, где оставалась 13 лет. Возможно, в это время Скиния была уже целиком каменным строением, но Ковчега в ней уже не было. После разрушения Нова Скиния и большинство её сосудов передвинулись в Гибеон (Гивон)[50], где в то время располагался духовный центр страны.
В этот период, однако, приносились жертвы не только в Скинии. Так Иисус Навин (Иехошуа бин Нун) поставил жертвенник на горе Эвал около Сихема (Шхема), Гедеон — в Офре, Самуил (Шмуэль) — в Мицпе и в Раме[51]. Саул построил жертвенник на поле битвы[52], Давид — на гумне Орны (месте будущего Храма)[53]. Народные собрания также происходили в различных городах: при Иисусе Навине — в Сихеме, при Самуиле — в Мицпе, Гиве, Гилгале, между тем как Скиния стояла в Силоме, Нове, Гибеоне.
После завоевания Иерусалима царь Давид построил там для Ковчега новую скинию, с тем, чтобы перенести духовный центр в Иерусалим. Ковчег был торжественно доставлен туда[54], где был помещён в особый шатёр из драгоценных ковров. Однако Скиния Моисея и медный её жертвенник оставались по-прежнему в Гибеоне, и именно этот жертвенник считался в то время главным[55].
После постройки царём Соломоном Храма (около 950 г. до н. э.) Ковчег Завета со всеми принадлежностями Скинии был торжественно перенесён туда[56]. С этого времени скиния больше не упоминается. Согласно преданию[57], она была укрыта в подземном тайнике под Храмом.
Местонахождение Скинии
Дальнейшая судьба Скинии с Ковчегом Завета до сих пор остаётся предметом споров, их следы так и не были найдены[58]. Во Втором Храме не было ни Ковчега, ни его принадлежностей[59], хотя связанный с ним ритуал воскурения фимиама в Святая святых в Йом-Киппур продолжал соблюдаться. Иосиф Флавий, говоря о Втором Храме, подобно книге Ездры (Эзры), говорит только лишь о сооружении жертвенника и Храма, но не о Святая святых.
Примечания
Литература
- Бабкина, С. В. Скиния / С. В. Бабкина, А. Е. Петров // Православная энциклопедия / Под общей редакцией Патриарха Московского и всея Руси Кирилла. Том 64. – Москва : Православная религиозная организация Церковно-научный центр "Православная энциклопедия", 2021. – С. 247-251.
- Гевурян, П. М. Устройство ветхозаветной скинии / П. М. Гевурян // Рязанский богословский вестник. – 2021. – № 2(24). – С. 147-155.
- Скиния // Еврейская энциклопедия Брокгауза и Ефрона. — СПб., 1908—1913.
- Старостин, Е. В. Библия и архивы / Е. В. Старостин // Труды Историко-архивного института. Том 41. – Москва : Российский государственный гуманитарный университет, 2015. – С. 91-101.
- Мурадели, М. Т. "Храм-скиния", "храм-вселенная" и "храм-космос" в представлении древнего человека Востока и Запада / М. Т. Мурадели // Научный вестник Воронежского государственного архитектурно-строительного университета. Строительство и архитектура. – 2008. – № 3(11). – С. 167-175.
- The Tabernacle (Soncino, 1969). Развёрнутые описания Скинии
Ссылки
- Скиния — статья из Электронной еврейской энциклопедии
- Скиния. Др. Питер С. Ракман.
- Шило — город, где стояла Скиния Завета 369 лет. Фоторепортаж.
- Скиния (Мишкан). Центр еврейского образования Украины.
- The Temple Institute.
- An exact, full-scale replica of the Tabernacle is under construction
- The Tabernacle model at Glencaírn museum
- An excellent study of the Tabernacle in everyday English
- The Tabernacle and its contents, in Hebrew, with many diagrams
- «Tabernacle Shadows»





