Торфянка (парк)
«Торфя́нка» — парк, расположенный в Лосиноостровском районе Северо-Восточного административного округа города Москвы[2]. Также используются названия «парк на Изумрудной улице»[1] и «сквер на Изумрудной улице»[3][4].
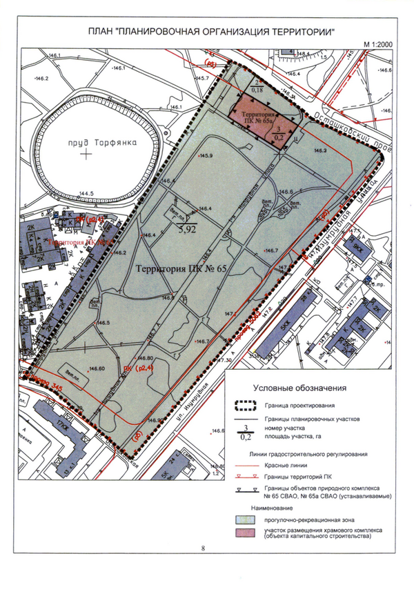
Летом 2015 года парк «Торфянка» стал ареной противостояния, вызванного строительством православного храма. Несмотря на договорённость о переносе места строительства храма и выделение двух новых участков в Лосиноостровском районе, представители ФХУ РПЦ МП по состоянию на август 2018 года отказывались освободить площадку в парке[5]. На общественных слушаниях 2016 года изменение проекта межевания, предусматривающее в том числе строительство дороги по юго-западной окраине парка, встретило резкую критику жителей и собственников жилья. Несмотря на это, окружная комиссия рекомендовала одобрить проект с учетом предложений и замечаний[6].
По информации на февраль 2018 года, на территории парка запланирована масштабная реконструкция[7]. Представленный на обсуждение проект породил в апреле 2018 года новую волну критики, предметом которой стало присутствие в нём поклонного креста[8].
Название парка «Торфянка» стало именем нарицательным, обозначающим конфликт[4].
Что важно знать
| Парк «Торфянка» | |
|---|---|
| Основная информация | |
| Площадь | 16,6[1] га |
| Расположение | |
| 55°52′30″ с. ш. 37°41′04″ в. д.GЯO | |
| Страна | |
| Город | Москва |
| Район города | Лосиноостровский район |
| Исторический район | Осташковский проезд, владение 4[1] |
| Метро | «Бабушкинская» |
Основные сведения
Парк «Торфянка» находится между Изумрудной улицей и улицей Лётчика Бабушкина. При этом он равноудалён от станции метро Бабушкинская и станции Лосиноостровская. Расстояние составляет 1 400 метров[2]. Площадь парка равна 16,6 гектара[прим. 1].
Территорию парка пересекают Напрудные улицы, 1-я и 2-я. В пределах парка они выглядят как парковые дорожки[9].
Своим неофициальным названием парк обязан распространённым в этой местности торфяным почвам, они же дали название и расположенному в парке пруду[2] (см. ниже).
В официальных документах московского правительства парк именуется иным образом[прим. 1], его официальный адрес — Осташковский проезд, владение 4[1].
В парке имеются детские площадки. Кафе и аттракционы на территории парка отсутствуют[2]. Весной и в летнее время в парке много цветов[10]. Большое число хвойных деревьев позволяет поддерживать чистоту воздуха[11], а сохранившиеся в парке яблоневые сады напоминают о дачном прошлом Лосиноостровского района[12]. Парк подходит для прогулок с детьми и для любителей живой природы. На территории парка осуществляется выгул собак[2].
В зимнее время парк используется лыжниками (по нему проходит круговая лыжня)[2][10].
В центре парка «Торфянка» находится пруд Торфянка[2][11][13], названный так по торфяным почвам[2] (иное название — Гагаринский пруд[13][14]). Его площадь составляет 1,4 гектара при средней глубине 2,5 метра и объёме воды 35 000 кубометров[11][13][14]. Пруд входит в бассейн реки Ички[13][14]. На пруду обитают утки, а на берегах пруда можно встретить рыбаков. Удить рыбу в пруду Торфянка удобно с трёх небольших причалов[11]. В 2008—2009 годах его берега отремонтировали и выложили камнем[14].
Купание в пруду Торфянка, как и на всей территории СВАО, запрещено[15].
В 2018 году на пруду планируется установить домики для водоплавающих птиц[16].
На территории парка имеется памятник воинам, погибшим в Афганистане и на Северном Кавказе[17].
В парке на берегу пруда расположено обветшавшее здание фабрики, за стенами которой в 1960-х годах началась карьера знаменитого российского модельера Вячеслава Зайцева, в ту пору молодого руководителя экспериментального отдела. Именно здесь в 1963 году состоялся показ разработанной им коллекции одежды для работников сельского хозяйства: ярких телогреек, юбок из расписных платков и валенок[18].
Официальный статус
| № | Именование | Площадь | Режим регулирования градостроительной деятельности |
|---|---|---|---|
| 65 | Парк на Изумрудной улице | ||
| 65а | Территория храмового комплекса на Осташковском проезде | ||
В документах московского правительства используется следующее именование парка — объект природного комплекса № 65 Северо-Восточного административного округа города Москвы «Парк на Изумрудной улице»[1].
Правовой статус территорий парка установлен Постановлением Правительства Москвы от 30 апреля 2013 года за подписью С. С. Собянина, которым из природного комплекса № 65 Северо-Восточного административного округа был выделен природный комплекс № 65а того же округа[1]. Таким образом, изначальная (до выделения территории храмового комплекса) площадь парка составляет 16,6 га (см. таблицу).
Согласно тому же постановлению, на выделенной из площади парка территории в 0,2 га предусмотрены следующие параметры объектов капитального строительства: общая площадь объекта — 1 164 м2; высота здания — 30 м; вместимость — 300 прихожан[1].
Cрок, на который православной общине был предоставлен земельный участок в парке, закончился, согласно договору безвозмездного срочного пользования, 28 августа 2016 года. Однако этот договор является действующим согласно Гражданскому кодексу РФ[19].
Комментируя ситуацию, в августе 2016 года глава Финансово-хозяйственного управления Русской церкви митрополит Рязанский и Михайловский Марк сообщил, что «на сегодняшний день отсутствуют правовые основания отказа от „Торфянки“». Своё суждение он обосновал тем, что указанный договор не расторгнут, а вопрос строительства капитального храма на новой площадке не решён окончательно[19]. По состоянию на июнь 2017 года, по словам митрополита Марка, ситуация не разъяснилась: «пока нет полной ясности, можно ли там возвести храм»[20].
Согласно обнародованной в ноябре 2017 года информации, участок должен быть освобождён, как только подрядной строительной организации будет выдано разрешение на возведение храма по адресу Анадырский проезд, 8; вопрос увязан с разработкой проектной документации, которая которая должна была появиться в первой декаде ноября[21], однако по состоянию на январь 2018 года ситуация не разрешилась[22].
Конфликт
Парк «Торфянка» стал ареной противостояния, вызванного строительством православного храма. Конфликт районного масштаба смог выйти в первые ряды новостей и приобрёл общемосковский характер[23]. Под храмовый комплекс выделен участок площадью 0,2 гектара[24][1] (20 соток), что составляет 1,2 % площади парка[прим. 2].
Развернувшееся в июне 2015 года противостояние противников и сторонников строительства храма в парке «Торфянка» привлекло личное внимание Патриарха Кирилла и его обращение к вовлечённым сторонам с призывом «к отказу от конфронтации»[23]. При этом он признал необходимым «дождаться судебного решения» и выразил надежду все существующие разногласия преодолеть в правовом поле[25].
Местные жители вошли как в ряды сторонников, так и в ряды противников строительства храма[24].
В указанных событиях в рядах сторонников строительства приняли активное участие представители православного движения «Сорок сороков»[23][24][26].
31 июля 2015 года Бабушкинский районный суд города Москвы удовлетворил ходатайство противников строительства храма в парке «Торфянка», которые отозвали свой иск с требованием отменить результаты публичных слушаний 2012 года[27][28]. В тот же день диакон Александр Волков, пресс-секретарь Патриарха, отозвался на решение суда сообщением о готовности Московской городской епархии «рассмотреть возможность строительства в другом месте — в том же микрорайоне, в пределах шаговой доступности»[29].
4 августа 2015 года депутаты Лосиноостровского муниципального округа Москвы предложили его жителям письменно высказать своё мнение по строительству храма в парке «Торфянка»[30], а в начале сентября 2015 года Интерфакс сообщил о голосовании в рамках интернет-проекта «Активный гражданин». Выбор шёл среди трёх площадок: около железнодорожной станции Лосиноостровская (по Анадырскому проезду), на участке по адресу улица Летчика Бабушкина, дом 42 и около супермаркета по адресу Изумрудная улица, дом 3[31].
Результаты голосования стали известны в октябре 2015 года: большинство голосов было отдано за первый вариант. В свою очередь, градостроительно-земельная комиссия Москвы согласилась с решением выделить новый земельный участок под храмовое строительство по адресу: Анадырский проезд, владение 8[32].
Действуя в соответствии с решениями Градостроительно-земельной комиссии города Москвы, Департамент городского имущества города Москвы оформил договор от 01.02.2016 за № М-02-608804 сроком на девять лет, предусматривающий безвозмездное пользование земельным участком с кадастровым номером 77:02:0016009:1934 (1 участок), на котором был возведён временный быстровозводимый храм-часовня, освящённый 28 апреля 2016 года[33].
14 ноября сотрудники полиции пришли с обысками к ряду активистов-защитников парка. Несколько человек после обысков задержали[34][35].
По состоянию на сентябрь 2017 года противостояние в парке продолжалось в «тлеющем» виде, перейдя в состояние «холодной войны»[36].
По информации на конец октября 2017 года, участок в парке должен быть освобождён, как только подрядной строительной организации будет выдано разрешение на возведение храма на новом участке; вопрос увязан с разработкой проектной документации, которая предположительно должна была завершиться в первой декаде ноября[21].
5 апреля 2018 года Комитетом государственного строительного надзора города Москвы застройщику - Религиозной организации «Финансово-хозяйственное управление Русской Православной церкви (Московский Патриархат)» оформлено разрешение на строительство № 77-151000-016746-2018 объекта «Храмовый комплекс» по адресу: Москва, СВАО, Лосиноостровский, Анадырский пр., вл. 8 (участок 2) сроком действия до 05.01.2019[37].
Однако в нарушении ранее принятых договорённостей на конец июня 2018 ФХУ РПЦ участок в парке «Торфянка» не освободило[38][39].
На середину августа 2018 взятые на себя обязательства освободить парк после получения разрешения на строительство храма на альтернативном участке РПЦ по прежнему не выполнила[40].
Планы и реализация
Согласно обнародованному в июне 2016 года заявлению муниципального депутата Марины Овчинниковой, примерно 0,3 гектара парковой территории планируется отрезать под дорожное строительство[41]. Согласно протоколу заседания окружной комиссии, территория разработки находится в пределах линий действующей улично-дорожной сети. Тем не менее, изменение проекта межевания, которое предусматривало, в том числе, строительство дороги по юго-западной окраине парка, встретило резкую критику жителей и собственников жилья. Звучали аргументы, что новая дорога затруднит доступ в парк, ухудшит условия проживания и создаст опасность для детей. В особенно эмоциональных отзывах идея проектируемого проезда была названа «глупой, безобразной и антигуманной», которая «могла возникнуть только в воспалённом мозгу». Несмотря на это, окружная комиссия рекомендовала одобрить проект с учетом предложений и замечаний[6].
По информации на февраль 2018 года, на территории парка запланирована масштабная реконструкция, которая предусматривает создание маршрутов для бега и спортивной ходьбы, устройство детских и спортивных площадок, установку скамеек и указателей, ремонт пешеходных дорожек и настилов у пруда, а также вырубку засохших насаждений, высадку новых деревьев и кустарников, разбивку клумб и установку домиков для птиц. Бюджет проекта составляет почти 3 млн рублей[7].
Концепция благоустройства парка вынесена на обсуждение в систему «Активный гражданин»[42]. Представленный на обсуждение проект породил в апреле 2018 года новую волну критики. Разногласия вызывает поклонный крест, появившийся в проекте вместо официально объявленной новогодней ёлки, а также нарушения в ходе процедуры голосования (в частности, блокировка голосов жителей в течение суток)[8]. Голосовать за сохранение в парке креста призывал, в частности, официальный сайт прихода храма преподобного Серафима Саровского в Раеве[43].
Весной-летом 2019 парк Торфянка всё-таки благоустроили. Благоустроительные работы проходили с многочисленными нарушениями. Так капитальный ремонт пруда Торфянка выполнялся с февраля по июнь 2019 до проведения закупки и заключения контракта на соответствующие работы. Кроме того было принято и оплачено фактически невыполненных работ по благоустройству парковой территории на сумму более 8 млн. руб.[44]
В 2019 году парк открылся после реконструкции по программе «Мой район»[45]. Вокруг пруда Торфянка обновлена набережная – в западной части располагается амфитеатр с полукруглой перголой и сцена на воде, а на северной стороне пруда находится пирс и смотровая площадка с шезлонгами. Для досуга в парке есть три детские площадки для разных возрастов, воркаут-зоны с тренажерами и турниками, столы для игры в настольный теннис и шахматы и проложена специальная тропа для занятия скандинавской ходьбой. Для владельцев домашних питомцев в зоне отдыха находится площадка для выгула со снарядами для дрессировки. В октябре 2019 года в «Торфянке» установили арт-объект – бронзовую скульптуру лося, символ района Лосиноостровский[46].


